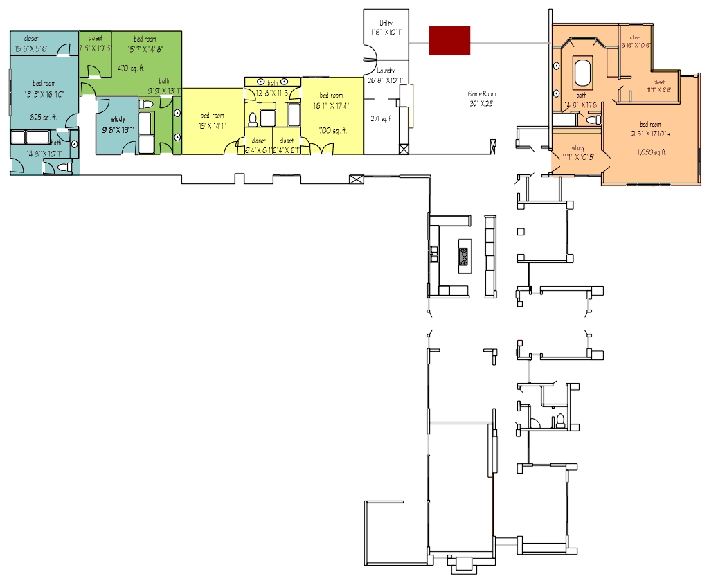
Floorplans and Suite Information

The colored-in areas of the floorplan represent the private suites in the residential wing of the house. Note that there is a hallway in this wing that separates the private suites from the poolside exterior of the house, providing an extra layer of sound protection from the pool area, as well as making the walk to your suite quite nice. Built-in bookcases and large windows line the hallway to the private suites.

Because ALL utilities are included in your rent (including Wi-Fi, weekly groundskeeping and a pool cleaning), all suites are priced for both single and double occupancy. This is to manage and offset the utility use and general eco-footprint of the house. Also, the total number of people living at the Ranch is limited, and the total headcount determines whether or not the house is "full". This maintains balance, avoids crowded kitchens, and allows all housemates to feel like they have the whole place to themselves most of the time.

The un-shaded areas represent the common areas of the house. While all housemates are expected to be respectful of each other's privacy, sleeping schedules, etc., the placement of the kitchen, living spaces and "gathering spots" are ideally situated in the south wing of the house. This helps ensure that every tenant is afforded quiet, peaceful enjoyment of their suite, even if there is activity in the south wing of the house. Click on the floorplan to enlarge.

The Studio

The first unit is a Studio with it's own private entrance from the pool area. It is approximately 500 sq ft, contains a large bathroom with separate shower and tub, and a huge walk-in closet.

LEASED

The Restful Nest

This unit is a one room suite with a giant walk-in closet that includes built-in armoire drawers. It is approximately 470 sq ft, and features a large bathroom with double sinks, separate shower and a tub.

AVAILABLE NOW:
$$ CALL /mo Single Occupancy.
Jack-n-Jill
Click to Enlarge

The Jack-n-Jill

This 2 bedroom suite unit consists of two matching rooms connected by a large bathroom with double sinks, separate tub and shower, and enclosed toilet. Each room has it's own walk-in closet and door to the the main hallway. It is approximately 700 sq ft, and one of the bedrooms features vaulted ceilings.

AVAILABLE NOW:
$$ CALL /mo Single Occupancy,
$$ CALL /mo Double Occupancy
Master
Click to Enlarge

The Master Suite

This enormous unit is a two room suite features a dark wood panel library at it's entrance, suitable for an office, parlor, or private library. The bedroom is 21 feet by 17 feet, the opulent bath is 15 feet by 17 feet, and the giant walk-in closet 11 feet by 6 feet. It is approximately 1100 sq ft of space, features vaulted ceilings, lots of windows, and a private garden off of the bathroom.

AVAILABLE NOW:
$$ CALL /mo Single Occupancy,
$$ CALL /mo Double Occupancy

Vacation Rental Options

Because this suite is located at the opposite end of the living wing, it's size and location makes it ideal for very short term corporate or vacation rentals. It is currently furnished as such, and can easily accommodate a family of four. Please contact us for corporate stays and vacation rental rates and terms.

All Utilies Included in the Rental Price

Tenants need not worry about any general "homeowner maintenance". The main house consists of renters only, but the management team is next door, and is on-site to oversee the groundskeeping, pool service, internet, and keep up with all the ongoing maintenance that a house of this size requires. They are also here to respond to all tenant needs or requests. So typical problems (laundry room, leaks, clogs, fixtures, etc.) are dealt with quickly - usually immediately upon being reported.

All the basics, and a little extra:

  • Internet / Wi-Fi / Content Streaming
  • Electricity
  • Water
  • Gas
  • Heat
  • Trash Pickup
  • Weekly Gardner and Pool Service
  • Weekly Pool Service

The large gourmet kitchen and dining room contain:

  • Double ovens
  • Island and ample counters
  • Built-in microwave and toaster
  • Coffee Maker
  • Induction cooking range
  • Ample cabinets and drawers for kitchen storage.
  • Separate large restaurant style wall-sized side-by-side sub zero freezer and refrigerator.
  • Dining table for six
  • Counter seating for two
  • The pool house contains an additional full kitchen

The estate features over 3,600 square feet of shared luxury living space:

  • Large sunken living room with attached wet bar and views of the front landscape.
  • Formal dining room and living rooms with lawn and garden views
  • Built-in bookcases, and closets throughout house.
  • Large front lawn between street and house
  • Large patio and garden/lawn off of the kitchen
  • Gas grill on the front main patio, convenient to the kitchen
  • Rear gated lawn and deck off of the family room
  • Additional gas grill, covered patio, and outdoor seating for 6 in the back yard.
  • Laundry room with washer, dryer, folding room with storage and counter space
  • Swimming pool and Poolhouse with kitchen and two bathrooms/changing rooms
  • Gazebo, walkways, and garden paths
  • Private Grapefruit, Orange and Lemon Orchard
  • Ample off street parking
  • The estate itself is also secure and gated, contained with iron fencing backed by old growth jade and oak trees.
  • Private trail leading to 20 additional acres of pasture, woods, with access to public hiking trails.
While household electronics and common use televisions are set up to use streaming services (HBONow, Hulu, NetFlix, etc.), and the bandwidth is quite good, you may contact Spectrum/TWC to have your own personalized TV/Web/Phone package installed at your own cost if you wish additional services. Please note that the property manager must be on site to work with the install tech, and the appointment you make should be made when the property manager is on site. Any services requiring a Dish or external equipment installations are not allowed at The Ranch.